Crawlspace: $229,267 | Basement: $258,952
1230 sq/ft | Cape Cod | 2 bedroom | 2 baths
As one of our premier Cape Cod houses, the Fairfax II does it all.
This model offers 1,230 square feet on the main floor, plus 643 square feet of upstairs space that can be finished to create additional bedrooms or living areas or left unfinished for future flexibility. With options for 2–4 bedrooms and 2-3 baths, this home adapts easily to a wide range of household needs.
A familiar exterior to Cape Cod houses paired with adaptable interior spaces makes the Fairfax II a practical, comfortable, and customizable home.
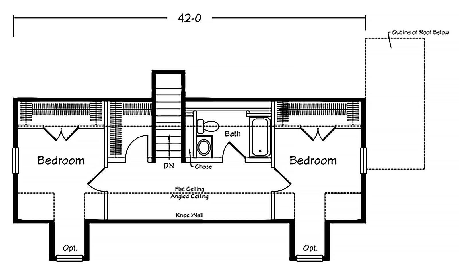
Floor Plan:
JDM Homes is an authorized builder for:
The largest family-owned, off-site, modular home manufacturer in the United States. Ritz-Craft’s custom designed modular homes utilize today’s latest and most proven construction methods to meet or exceed state home building codes — and your dream home expectations.
Fairfax II Gallery
Cape Cod houses feature classic steep rooflines, charming symmetry, and a warm, cottage-like feel that never goes out of style. Their efficient layouts and optional expandable second floors make them a smart, flexible choice for families, downsizers, and first-time homebuilders alike. Every design can be customized to fit your lifestyle and preferences.
Standard Price Includes:
-
Fully Finished Main Level
-
Standard HVAC Package
-
Electrical Connections
-
Plumbing Connections
More from JDM Homes
These Cape Cod houses are customizable and permanent dwellings that are characterized by methods for quick assembly of the various sections of the structure, unlimited flexibility of materials and layout, and building standards that ensure your structure meets federal and local building codes. JDM Homes strives to continuously innovate and provide premier home constructions that will meet whatever your need is. If you’re interested in other types of projects, check out some of our other dwelling structures such as A-Frame cottages, as well as our fully custom home projects.
JDM Structures is a family-owned business dedicated to building high-quality custom homes, learn more from our JDM Structures website about our story, and our mission to bring innovation into your home.



