Crawlspace: $233,882 | Basement: $262,007
1257 sq/ft | Cape Cod | 2 bedroom | 2 baths
The Oak Grove model is one of our classic homes that demonstrates simplicity combined with elegance.
This classic home provides 1,257 square feet on the main level and 698 square feet upstairs that can be finished for additional bedrooms, office space, or recreation—or left unfinished for future needs. Offering 2–4 bedrooms and 2-3 baths, this model balances efficient design with charm.
This classic home is presented with a traditional and cozy Cape Cod profile, and contains thoughtfully arranged living areas, delivers comfort, character, and adaptability.
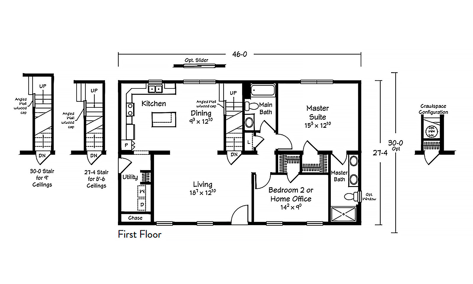
Floor Plan:
JDM Homes is an authorized builder for:
The largest family-owned, off-site, modular home manufacturer in the United States. Ritz-Craft’s custom designed modular homes utilize today’s latest and most proven construction methods to meet or exceed state home building codes — and your dream home expectations.
Oak Grove Gallery
Cape Cod–style homes feature classic steep rooflines, charming symmetry, and a warm, cottage-like feel that never goes out of style. Their efficient layouts and optional expandable second floors make them a smart, flexible choice for families, downsizers, and first-time homebuilders alike. Every design can be customized to fit your lifestyle and preferences.
Standard Price Includes:
-
Fully Finished Main Level
-
Standard HVAC Package
-
Electrical Connections
-
Plumbing Connections
More from JDM Homes
These beautiful classic homes are customizable and permanent dwellings that are characterized by methods for quick assembly of the various sections of the structure, unlimited flexibility of materials and layout, and building standards that ensure your structure meets federal and local building codes. JDM Homes strives to continuously innovate and provide premier home constructions that will meet whatever your need is. If you’re interested in other types of projects, check out some of our other dwelling structures such as A-Frame cottages, as well as our fully custom home projects.
JDM Structures is a family-owned business dedicated to building high-quality custom homes, learn more from our JDM Structures website about our story, and our mission to bring innovation into your home.




