Crawlspace: $275,912 | Basement: $313,037
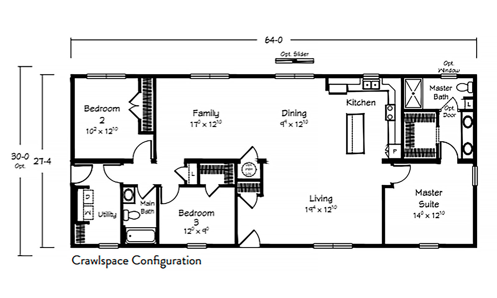
1760 sq/ft | Ranch | 3 bedroom | 2 baths
The Eagleton stands out as one of the larger ranch floorplans in our modular home collection.
It features 1,760 square feet of open, single-level living. With three bedrooms and two bathrooms, its expansive layout provides plenty of room to live, work, and entertain.
Designed for both comfort and flexibility, the Eagleton ranch floorplan includes a spacious living area, a well-appointed kitchen, and a private owner’s suite for relaxation at the end of the day. Its efficient modular construction ensures durability, energy savings, and a smooth building process.
Floor Plan:
JDM Homes is an authorized builder for:
The largest family-owned, off-site, modular home manufacturer in the United States. Ritz-Craft’s custom designed modular homes utilize today’s latest and most proven construction methods to meet or exceed state home building codes — and your dream home expectations.
Eagleton Gallery
Ranch floorplans and homes offer a long, low-profile design that emphasizes simplicity, comfort, and effortless everyday living. Every layout is fully customizable to fit your needs.
Standard Price Includes:
- Fully Finished Home
- Standard HVAC Package
- Electrical Connections
- Plumbing Connections
More from JDM Homes
These beautiful ranch floorplans and modular homes are customizable and permanent residences that demonstrate the highest tier of methods for assembly of the various sections of the structure, unlimited flexibility of materials and layout, and building standards that ensure your structure meets federal and local building codes. JDM Homes strives to continue innovating and providing premier home constructions that will meet whatever your need is. If you’re interested in other types of projects, check out some of our other dwelling structures such as A-Frame cottages, as well as our fully custom home projects.
JDM Structures is a family-owned business dedicated to building high-quality custom homes, learn more from our JDM Structures website about our story, and our mission to bring innovation into your home.






