Crawlspace: $357,753 | Basement: $391,351
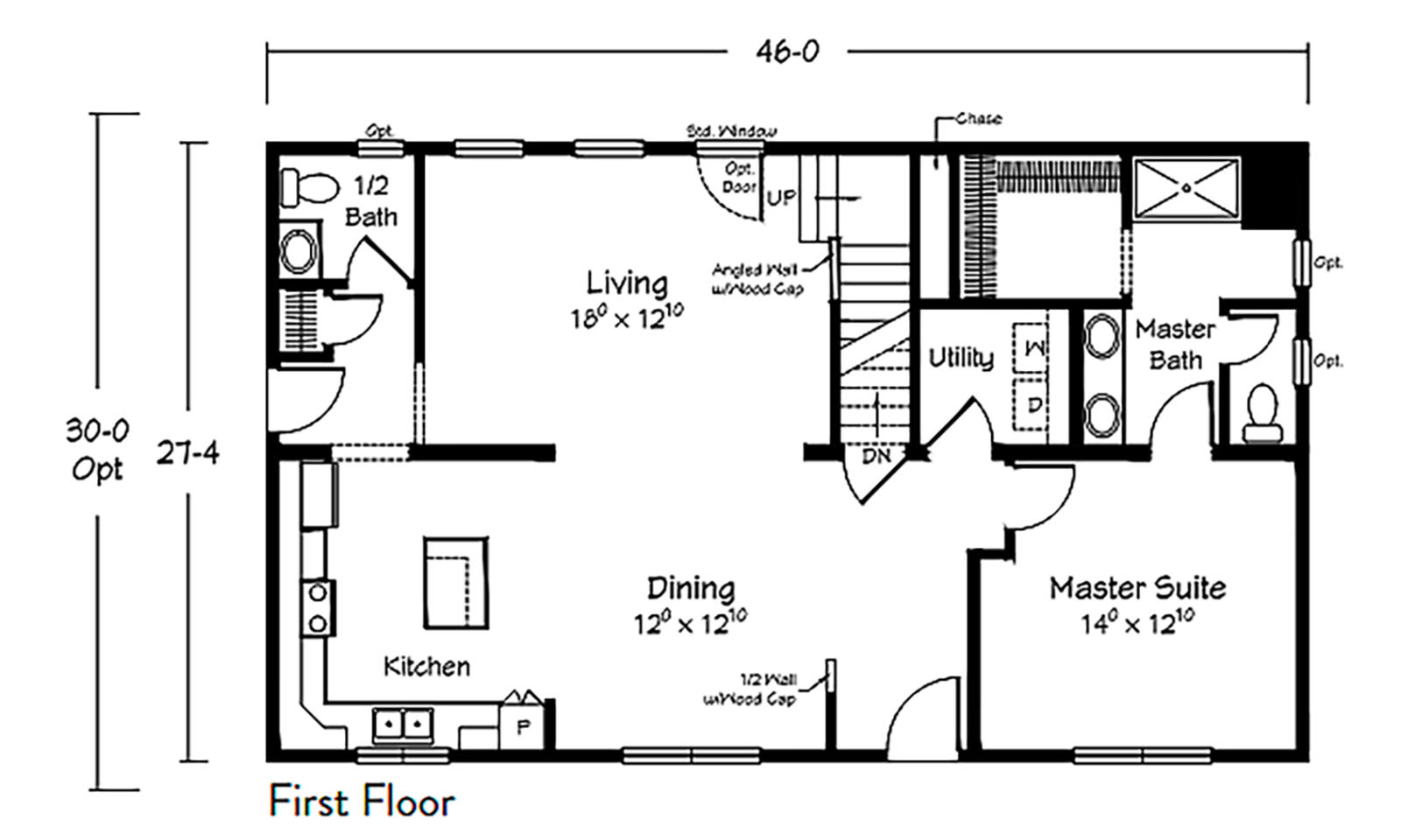
2187 sq/ft | Two Story | 4 bedroom | 2.5 baths
Top modular home builders consider the Orchard model to be a prime option for custom home building.
This floor plan is a flexible and family-friendly two-story modular home featuring 2,187 sq. ft., 4 bedrooms, and 2.5 baths. Its layout includes an inviting main-level living space, a spacious kitchen, and a second floor designed for privacy and rest.
Ideal for households who want extra room to grow, the Orchard blends traditional style with the efficiency and durability of modular construction.
Floor Plan:
JDM Homes is an authorized builder for:
The largest family-owned, off-site, modular home manufacturer in the United States. Ritz-Craft’s custom designed modular homes utilize today’s latest and most proven construction methods to meet or exceed state home building codes — and your dream home expectations.
Orchard Gallery
Two-story homes are designed to separate everyday living from private spaces, giving families room to grow and live comfortably. Every JDM Home layout is customizable to fit your needs and lifestyle.
Standard Price Includes:
- Fully Finished Home
- Standard HVAC Package
- Electrical Connections
- Plumbing Connections
More from JDM Homes
These beautiful modular homes are customizable and permanent dwellings that are characterized by methods for quick assembly of the various sections of the structure, unlimited flexibility of materials and layout, and building standards from the top modular home builders that ensure your structure meets federal and local building codes. As top modular home builders, JDM Homes strives to continuously innovate and provide premier home constructions that will meet whatever your need is. If you’re interested in other types of projects, check out some of our other dwelling structures such as A-Frame cottages, as well as our fully custom home projects.
JDM Structures is a family-owned business dedicated to building high-quality custom homes, learn more from our JDM Structures website about our story, and our mission to bring innovation into your home.





